Reizende portaalkraan
Productintroductie
Een reizende portaalkraan is een soort hijsuitrusting, die voornamelijk bestaat uit balken, eindbalken, hefmechanisme, elektrisch systeem, enzovoort. Het wordt veel gebruikt in fabrieken, magazijnen, parken, havens, mijnen en andere laadplaatsen.
Volgens de structuur kan de kraan worden onderverdeeld in een enkele kraan, een dubbele kraan, een doosvormige brug en een dubbele doosbrug; Gewone brugkranen kunnen afhankelijk van hun gebruik worden onderverdeeld in explosieveilige brugkranen en externe brugkranen; Afhankelijk van de werkingsmodus kan deze worden onderverdeeld in grondbediening, lokale bediening en bediening op afstand.
3) Reizende portaalsystemen zijn ontworpen om veilige toegang te bieden tot vlakke, hellende of gebogen delen van de beglazing, zoals daklichten, koepels of atria.
Nominaal laadvermogen: 25 ton, 10 ton, 16 ton, 20 ton, 30 ton
Max. Hefhoogte: 16m
Spanwijdte:10-29,5 meter
Werkplicht:A4-A7
Spanning: 380 V/50 Hz
Werktemperatuur:-20 graad ~+40 graad
Kraanbedieningsmodus: vloerbediening / afstandsbediening / cabineruimte

Afbeeldingen en componenten
Hele set kraan
Een reizende portaalkraan is een type hijsapparaat dat bestaat uit een horizontale balk of portaal, aan beide uiteinden ondersteund door verticale kolommen. De hele constructie beweegt langs rails of sporen op de grond, waardoor de kraan een groter gebied kan bestrijken dan een vaste kraan. De kraan kan worden uitgerust met verschillende soorten takels en hefmechanismen om verschillende materialen en lasten te kunnen hanteren.

Hoofdligger
De hoofdligger van een reizende portaalkraan met dubbele ligger is een cruciaal structureel onderdeel dat de basis vormt voor de hijsmogelijkheden van de kraan. Bij een portaalkraan met dubbele ligger zijn er twee parallelle hoofdliggers die zich uitstrekken tussen de eindwagens of kolommen, die langs de grondrails of sporen lopen. Deze liggers zijn doorgaans ontworpen om robuust en stijf te zijn en de belastingen en spanningen te ondersteunen die tijdens het gebruik optreden.
Hoofdliggers worden gewoonlijk gemaakt van staal, dat een hoge sterkte en duurzaamheid biedt. Het specifieke type staal en de kwaliteit ervan zijn afhankelijk van de verwachte belastingseisen en omgevingsomstandigheden.
De hoofdliggers zijn aan elk uiteinde verbonden met de eindwagens of kolommen, vaak via een systeem van pennen, bouten en lassen. Deze verbinding moet sterk genoeg zijn om elke relatieve beweging te voorkomen die de stabiliteit in gevaar zou kunnen brengen.

Hefsysteem
Het hefsysteem van een reizende dubbelligger-portaalkraan is verantwoordelijk voor het heffen, laten zakken en transporteren van zware lasten. Het bestaat doorgaans uit verschillende belangrijke componenten die samenwerken om efficiënte en nauwkeurige hefmogelijkheden te bieden. Staalkabel
Hier is een overzicht van de belangrijkste componenten van het hefsysteem: zoals hijsmechanisme, elektrische motor, trommel, besturingssysteem enzovoort.
Einde rijtuigen
De eindwagens van een dubbelligger-loopkraan spelen een cruciale rol in de beweging en stabiliteit van de kraan. Hier zijn enkele belangrijke punten met betrekking tot de eindwagens
Functionaliteit:1.Ondersteuning en beweging: De eindwagens ondersteunen de uiteinden van de dubbele ligger en lopen langs de kraanrails of grondsporen, waardoor de kraan horizontaal kan rijden.
Stabiliteit:Ze helpen de kraan tijdens het gebruik te stabiliseren, vooral bij het heffen van zware lasten. 3. Wielmontage: elke eindwagen bevat doorgaans meerdere wielen (ook wel 'kraanwielen' of 'eindwagens' genoemd) die zorgen voor een soepele beweging en gelijkmatige verdeling van de lasten. belasting op de rails.Soorten:1.Wagens met vast uiteinde: deze hebben geen aandrijving en zijn voor vertaling afhankelijk van de beweging van de brug.
2. Aangedreven eindwagens: uitgerust met motoren, deze kunnen de kraan onafhankelijk langs de rails voortbewegen.
Ontwerp:
1. Stijve constructie: de eindwagens zijn ontworpen om sterk en stijf te zijn om de spanningen van zowel het eigen gewicht van de kraan als de hijslasten aan te kunnen.
2. Verstelbaar: sommige modellen kunnen verstelbare functies bevatten om onregelmatigheden op het spoor of verschillende bedrijfsomstandigheden te compenseren.
Onderhoud:
1.Regelmatige inspectie: Periodieke controles op slijtage van wielen, lagers en andere componenten zijn essentieel om de operationele veiligheid en efficiëntie te behouden.
2. Smering: Een goede smering van bewegende delen vermindert wrijving en verlengt de levensduur van de eindwagens.
.
Kraanloopmechanisme
Het kraanloopmechanisme van een reizende dubbelligger-portaalkraan is verantwoordelijk voor het horizontaal verplaatsen van de kraan langs een specifiek spoor of rail. Dankzij dit mechanisme kan de kraan goederen over een groter gebied transporteren en is daarom zeer nuttig in industriële omgevingen waar een breed scala aan transport nodig is.
Hieronder worden de belangrijkste aspecten van de kraanwagen toegelicht: Onderdelen:
Eindvorkheftrucks of steekwagens: deze bevinden zich aan de uiteinden van de dubbele ligger en rijden op de kraanbaan of grondbaan.
Aandrijvingen: Dit zijn meestal elektromotoren die worden aangedreven door industriële besturingssystemen, die giekgestuurd, radiogestuurd of geautomatiseerd kunnen zijn.
Wielen en lagers: de eindframes zijn voorzien van een aantal wielen om het gewicht van de kraan en de lading te ondersteunen, zodat de kraan soepel over het spoor beweegt.
Koppelinrichtingen: sommige kranen zijn uitgerust met mechanische of elektronische koppelsystemen die de beweging van twee eindwagens synchroniseren, zodat ze in een rechte lijn rijden.
Traverseermechanisme voor trolleys
Het loopkatmechanisme van een reizende dubbelligger-portaalkraan is verantwoordelijk voor de zijdelingse beweging van de kraan of haak langs de brug of ligger. Dankzij dit mechanisme kan de last nauwkeurig in een horizontaal vlak worden gepositioneerd, loodrecht op de bewegingsrichting van de portaalkraan zelf. Hieronder staan enkele van de belangrijkste componenten en kenmerken van het trolley-slipmechanisme:
Componenten:
1. Aandrijfmechanisme: Meestal een elektromotor die zorgt voor de beweging van de trolley langs de ligger.
2.Wielen of zwenkwielen: De trolley heeft wielen of zwenkwielen die op rails lopen die zich aan de onderkant van de brug of ligger bevinden. Deze wielen ondersteunen het gewicht van de lift en de lading.
3. Versnellingsbak: Sommige mechanismen kunnen zijn uitgerust met een versnellingsbak die de snelheid en het koppel van de motor regelt, waardoor een nauwkeurige controle van de beweging van de lift mogelijk is.
4. Touwen of haken: De touwen of haken van de takel (zoals een touw of ketting) zijn aan de trolley bevestigd en bewegen mee langs de ligger.
Kraan wiel
De wielen van een dubbelligger-portaalkraan zijn een essentieel onderdeel waarmee de kraan op rails kan bewegen. Deze wielen worden meestal gemonteerd op eindwagens of vrachtwagens die zich aan beide uiteinden van de kraanbalk bevinden. Hieronder staan enkele belangrijke aspecten van kraanwielen:
Ondersteuning en mobiliteit: De wielen ondersteunen het gewicht van de kraan en zijn lading, waardoor de kraan langs de aangewezen startbaan of rails kan rijden.
Lastverdeling: Kraanwielen zorgen voor een gelijkmatige verdeling van de last op de rails, waardoor overmatige slijtage aan de sporen en de kraanconstructie wordt voorkomen.
Materiaal: Gemaakt van duurzame materialen zoals staal of gietijzer, soms met extra coatings voor corrosiebestendigheid.
Rijsnelheid: Het ontwerp van de wielen en hun interactie met de rails kunnen de maximale snelheid waarmee de kraan veilig kan rijden beïnvloeden.
Flenswielen: hebben aan beide zijden een velg of flens om ontsporing te voorkomen.
De kraanwielen vormen een fundamenteel onderdeel van de dubbelligger-loopkraan en zorgen voor de mobiliteit, stabiliteit en veilige werking ervan. Goed onderhoud en regelmatige inspectie zijn essentieel voor het behoud van hun prestaties en een lange levensduur.
![]() |
![]() |
![]() |
Kraan haak
1) De kraanhaak van een dubbelligger-loopkraan is het onderdeel aan het uiteinde van het hefmechanisme dat wordt gebruikt om verschillende lasten aan te grijpen en op te tillen. De haak speelt een cruciale rol bij het bedienen van de kraan, omdat hij het belangrijkste bevestigingspunt is voor het hijsen van stroppen, kabels of andere hijsaccessoires.



Motor
De motor van een dubbelligger-loopkraan is een cruciaal onderdeel dat de kracht levert die nodig is voor zowel het hijs- als het rijmechanisme. Motoren worden gebruikt om lasten te heffen en neer te laten met behulp van het hijsmechanisme en om de kraan langs de rails of startbaan te verplaatsen.
Soorten motoren:
Elektromotoren: Dit zijn de meest voorkomende typen motoren die in portaalkranen worden gebruikt vanwege hun efficiëntie, bestuurbaarheid en betrouwbaarheid. Dit kunnen DC (gelijkstroom) of AC (wisselstroom) typen zijn.
Gelijkstroommotoren: Historisch gezien werden gelijkstroommotoren veel gebruikt voor kranen vanwege hun uitstekende snelheidsregelingseigenschappen. Ze vereisen echter meer onderhoud dan AC-motoren.
Wisselstroommotoren: Moderne kranen gebruiken vaak wisselstroommotoren met frequentieregelaars (VFD's) voor hijs- en rijfuncties. AC-motoren zijn minder onderhoudsintensief en bieden een hoog rendement.
Pneumatische of hydraulische motoren: Sommige gespecialiseerde portaalkranen kunnen pneumatische of hydraulische motoren gebruiken, vooral in toepassingen waar geen elektrische stroom beschikbaar is of waar specifieke prestatiekenmerken vereist zijn.
Functionaliteit:
Hijsmotoren: Bekrachtig de lier of de hijstrommel om de haak of grijper omhoog en omlaag te brengen.
Rijmotoren: drijf de wielen of rupsbanden van de kraan aan, zodat deze langs het horizontale pad kan bewegen.

. 

Geluids- en lichtalarmsysteem& eindschakelaar
Het geluids- en lichtalarmsysteem en de eindschakelaars zijn belangrijke veiligheidsvoorzieningen van een dubbelligger-loopkraan. Deze componenten helpen machinisten en omringend personeel te waarschuwen voor mogelijke gevaren en zorgen ervoor dat de kraan binnen de aangegeven grenzen functioneert. Hier is een uitleg van elk:
Geluids- en lichtalarmsysteem:
Hoorbaar alarm: Een luide sirene of claxon wordt gebruikt om mensen in de buurt van de werkzaamheden van de kraan te waarschuwen, vooral wanneer de kraan in beweging is of wanneer er een potentieel veiligheidsrisico bestaat.
Visuele signalen: Waarschuwingslichten, meestal stroboscooplichten of zwaailichten, worden gebruikt om visuele waarschuwingen te geven tijdens kraanwerkzaamheden, vooral in omstandigheden met beperkt zicht of 's nachts.
Eindschakelaars:
Functie: Eindschakelaars zijn elektronische apparaten die de positie van de kraan of zijn componenten detecteren en de stroom uitschakelen wanneer de kraan zijn operationele limieten bereikt.
Rijeindschakelaars: Deze worden aan de uiteinden van de rails of startbaan van de kraan geïnstalleerd om te voorkomen dat de kraan van de rupsbanden raakt.
Takellimietschakelaars: worden gebruikt om te detecteren wanneer de haak of last de boven- of ondergrens van zijn verplaatsing bereikt, waardoor wordt voorkomen dat de takel te veel oprolt of afwikkelt.
Andere veiligheidsschakelaars: Extra eindschakelaars kunnen worden gebruikt om andere kritische componenten te bewaken, zoals de positie van de trolley, poortposities of zelfs belastingshoeken in het geval van beweegbare zwenkkranen.

Veiligheidsapparaten
Reizende portaalkraan Veiligheidsvoorzieningen:
De veiligheid van personeel en materieel heeft de hoogste prioriteit bij het bedienen van een dubbelligger-loopkraan. Om een veilige werking te garanderen, zijn er verschillende veiligheidsvoorzieningen in het ontwerp en de bediening van de kraan opgenomen.
Overbelastingsbeveiliging: Load Cells: Wordt gebruikt om de last te meten die door de kraan wordt gehesen. Als de last de nominale capaciteit van de kraan overschrijdt, kan het systeem het hijsmechanisme automatisch uitschakelen. Mechanische overbelastingsindicatoren: Sommige kranen kunnen mechanische apparaten gebruiken die aangeven wanneer een last de capaciteit van de kraan benadert of overschrijdt.
Antibotsingsapparaat: Dit apparaat is ontworpen om te voorkomen dat de kraan in botsing komt met andere kranen of constructies in de omgeving. Het kan de vorm hebben van een nabijheidssensor of een laserscanner.
Rijbegrenzingsschakelaars: Deze schakelaars worden aan het einde van het rijpad van de kraan geïnstalleerd om te voorkomen dat deze buiten zijn veilige werkbereik komt.
Noodstopknop: Met deze knop kan de machinist in geval van nood onmiddellijk alle bewegingen van de kraan stoppen.
Remmen: De kraan is uitgerust met remmen op elk wiel om te voorkomen dat hij gaat rollen wanneer hij niet wordt gebruikt.
Verlichting: Er is voldoende verlichting aanwezig om ervoor te zorgen dat de machinist de lading en de omgeving duidelijk kan zien.
Aarding: De kraan is geaard om elektrische schokken voor de machinist of schade aan de apparatuur te voorkomen.
Controlemodus
De besturingsmodus van een reizende portaalkraan verwijst naar de methode waarmee de kraan wordt bediend om zijn functies uit te voeren, inclusief het heffen, verplaatsen en laten zakken van lasten. Er worden verschillende soorten besturingsmodi gebruikt in reizende portaalkranen, elk met zijn eigen voordelen en toepassingen.
Hier zijn enkele veelvoorkomende besturingsmodi: 1. Handmatige controle2. Hangerbediening 3. Radioradio/draadloze bediening4. Automatische/programmeerbare bediening


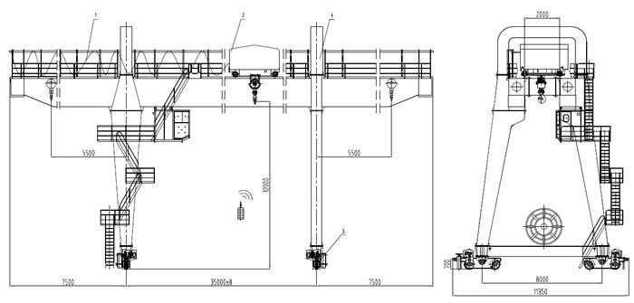
Schetsen

Belangrijkste technische gegevens

Voordelen
Verbeterde stabiliteit:Het ontwerp met dubbele ligger zorgt voor meer stabiliteit tijdens hijswerkzaamheden, waardoor het risico op slingeren of instabiliteit van de last wordt verminderd. Dit is vooral belangrijk bij het hanteren van grote of zware lasten.
Verbeterde stijfheid:De extra ligger zorgt ervoor dat de kraan ook onder zware belasting stijf blijft, wat de nauwkeurigheid verbetert en slijtage aan het materieel vermindert.
Groter hefvermogen:Met twee liggers kan de kraan zwaardere lasten aan dan een vergelijkbaar enkelliggersysteem, waardoor hij geschikt is voor veeleisende industriële omgevingen.
Verhoogde veiligheid:Het robuuste ontwerp en de geavanceerde veiligheidsvoorzieningen maken de dubbelligger-portaalkraan een veilige keuze voor industriële omgevingen. Functies zoals overbelastingsbeveiliging, eindschakelaars en noodstopfuncties helpen ongelukken en letsel te voorkomen.
Veelzijdigheid:Hoewel de kraan is geoptimaliseerd voor zware werkzaamheden, kan hij nog steeds worden aangepast aan een reeks toepassingen en omgevingen. Het kan worden ontworpen met verschillende hefvermogens, overspanningslengtes en hoogteaanpassingen om aan specifieke eisen te voldoen.
Efficiënte werking:Dankzij het loopmechanisme kan de kraan grotere gebieden bestrijken, waardoor de operationele efficiëntie wordt verbeterd doordat de noodzaak om de kraan handmatig te verplaatsen wordt verminderd. Deze functie bespaart tijd en moeite, vooral in faciliteiten met grote werkruimtes.
Precisieplaatsing:Het dubbele liggersysteem, gecombineerd met geavanceerde besturingssystemen, maakt een nauwkeurige plaatsing van de lading mogelijk. Dit is van cruciaal belang bij toepassingen waarbij nauwkeurigheid vereist is, zoals bij productieprocessen of bij het werken met delicate materialen.
Sollicitatie:
Zware productie:In industrieën zoals staal, papier en cement, waar zware materialen en producten van de ene plaats naar de andere moeten worden verplaatst, is de dubbelligger-portaalkraan onmisbaar. Het maakt het efficiënte transport van grote rollen, platen of zware machineonderdelen mogelijk.
Scheepsbouw en reparatie:Gebruikt op scheepswerven voor de montage en reparatie van schepen. De kraan kan met precisie zware delen van schepen, motoren of andere grote componenten tillen.
Bouwplaatsen:Op grote bouwplaatsen wordt de kraan gebruikt voor het hijsen van prefab betonelementen, stalen balken en andere bouwmaterialen. Dankzij zijn mobiliteit kan hij grote oppervlakken bestrijken, waardoor hij geschikt is voor gebruik in zowel binnen- als buitenomgevingen.
Opslag en materiaalbehandeling:Op open opslagterreinen en magazijnen wordt de kraan gebruikt voor het laden, lossen en verplaatsen van goederen. Omdat hij over een spoor kan rijden, is hij ideaal voor faciliteiten die frequente en uitgebreide materiaalbehandeling vereisen.
Energiesector:In elektriciteitscentrales en faciliteiten voor hernieuwbare energie wordt de kraan gebruikt voor de installatie en het onderhoud van zwaar materieel zoals turbines, generatoren en andere mechanische constructies.
Mijnbouw en steengroeven:Bij mijnbouwactiviteiten wordt de kraan gebruikt voor het laden en lossen van mijnbouwapparatuur, het transporteren van erts en het hanteren van voorraden.
Spoorweg- en luchthavenonderhoud:Wordt gebruikt voor onderhoudswerkzaamheden op treinstations en luchthavens, zoals het verplaatsen van onderhoudsapparatuur, het laden en lossen van vracht en het hanteren van grote voorwerpen zoals locomotieven of vliegtuigonderdelen.
Auto-industrie:In fabrieken wordt de kraan gebruikt voor assemblagewerkzaamheden, het verplaatsen van zware componenten en subassemblages, en het laden en lossen van zendingen.
Kraanproductie procedure
1. Ontwerp:Analyse van vereisten: De eerste stap omvat het begrijpen van de specifieke vereisten van de klant, inclusief het hefvermogen, de overspanning, de hoogte en eventuele speciale toepassingen of omgevingen waarin de kraan zal werken. Voorlopig ontwerp: op basis van de vereisten maken ingenieurs voorlopige ontwerpen, selecteren de juiste structurele componenten, aandrijfsystemen en veiligheidsvoorzieningen. Gedetailleerde engineering: dit omvat gedetailleerde tekeningen en specificaties voor elk onderdeel, zodat alle elementen voldoen aan de relevante normen en voorschriften.
2. Inkoop en voorbereiding van materiaal
Materiaalinkoop: het verkrijgen van hoogwaardige materialen zoals staal, staalkabels en elektrische componenten van betrouwbare leveranciers.
Materiaalvoorbereiding: Stalen profielen worden gesneden, gevormd en voorbereid voor lassen en montage.
3. Fabricage van componenten
Structurele montage: De hoofdconstructie, inclusief de brugligger, eindwagens en poten, wordt vervaardigd en geassembleerd met behulp van lassen en bouten.
Mechanische componenten: Het hijsmechanisme, de trolley en andere mechanische onderdelen worden vervaardigd in de machinewerkplaats.
Elektrische componenten: Elektrische componenten zoals motoren, bedieningspanelen en kabelbomen worden geassembleerd en getest.
4. Schilderen en afwerken
Oppervlaktevoorbereiding: Alle structurele componenten worden gestraald en gereinigd om eventuele verontreinigingen te verwijderen die de hechting van de verf kunnen beïnvloeden.
Lakken: Componenten zijn geverfd met hoogwaardige industriële verf, vaak met meerdere lagen voor duurzaamheid en bescherming tegen omgevingsfactoren.
5. Montage
Subassemblage: Er worden kleinere componenten en samenstellingen samengesteld, zoals het hijsmechanisme en de trolleyconstructie.
Hoofdconstructie: De hoofdconstructie wordt gemonteerd en de subconstructies worden in de kraan geïntegreerd.
Elektrische installatie: Elektrische componenten en bedrading worden geïnstalleerd en aangesloten.
6. Testen en kwaliteitscontrole
Functioneel testen: Elke functie van de kraan wordt getest om er zeker van te zijn dat deze soepel werkt en aan de gespecificeerde eisen voldoet.
Belastingstests: De kraan ondergaat statische en dynamische belastingstests om er zeker van te zijn dat hij zijn nominale capaciteit veilig kan hanteren.
Veiligheidscontroles: Alle veiligheidsvoorzieningen worden getest om er zeker van te zijn dat ze correct functioneren.
7. Verpakking en verzending
Demontage (indien nodig): Afhankelijk van de transportvereisten moeten sommige componenten mogelijk worden gedemonteerd.
Verpakking: Componenten zijn veilig verpakt om schade tijdens transport te voorkomen.
Verzending: De kraan of zijn componenten worden verzonden naar de installatielocatie.

Werkplaatsweergave
Materiaalinspectie
Kwaliteitsinspectie: Er wordt een strenge kwaliteitscontrole uitgevoerd op de aangekochte grondstoffen om ervoor te zorgen dat ze voldoen aan de ontwerpvereisten en nationale normen.
Materiaalopslag: Gekwalificeerde materialen worden opgeslagen volgens classificatie om corrosie of schade te voorkomen.
Snijden en vormen
Staalsnijden: Gebruik plasmasnijden, lasersnijden of vlamsnijden en andere technologieën om het staal te snijden volgens de grootte van de ontwerptekening.
Vormverwerking: Vorm de stalen plaat door middel van buigen, rollen, lassen en andere processen om de hoofdbalk, eindbalk en andere structurele onderdelen te vervaardigen.
Lassen
Componentlassen: De gesneden en gevormde stalen onderdelen worden in de hoofdconstructies zoals de hoofdbalk, de eindbalk en de trolley gelast. Het lasproces moet strikt worden gecontroleerd om de structurele sterkte en laskwaliteit te garanderen.
Lasinspectie: Gebruik niet-destructieve testtechnologie (zoals ultrasoon testen, radiografisch testen) om de lassen te inspecteren om er zeker van te zijn dat er geen scheuren of andere defecten zijn.
Bewerking
Precisiebewerking: Er wordt precisiebewerking uitgevoerd op de belangrijkste componenten van de kraan, zoals wielstellen, lagerzittingen, katrollen, enz., om hun maatnauwkeurigheid en oppervlaktekwaliteit te garanderen.
Montage van de gehele machine
Algemene montage: Op basis van voormontage wordt de algehele montage van de kraan uitgevoerd, inclusief de eindmontage van de hoofdbalk, eindbalk, hefmechanisme, loopmechanisme etc.
Inbedrijfstelling en testen
Onder dynamische omstandigheden worden de operationele prestaties van de kraan getest, inclusief het testen van hef-, loop-, stuur- en andere functies. De totale maat van de geassembleerde brugkraan wordt gecontroleerd om er zeker van te zijn dat alle afmetingen voldoen aan de ontwerpvereisten.
Spuiten en anticorrosiebehandeling
Oppervlaktebehandeling Roestverwijdering: Roestverwijdering op het oppervlak van de kraan, gebruikelijke methoden zijn zandstralen, beitsen, enz. Primer spuiten: Spuit een anticorrosieprimer op het behandelde oppervlak om metaaloxidatie en corrosie te voorkomen. Aflak spuiten Kleur spuiten: Aflak spuiten volgens klanteisen of industriestandaarden om de kraan een beschermend en decoratief effect te geven. Markering: Markeer na het spuiten de identificatiegegevens van de kraan in overeenstemming met de specificaties, zoals model, nominale belasting, enz.
Fabriek en installatie
Verpakking en transport
Verpakkingsbescherming: Verpak de belangrijkste componenten van de kraan beschermend om schade tijdens transport te voorkomen. Transportarrangement: Selecteer, afhankelijk van de omvang van de uitrusting en de transportomstandigheden, een geschikte transportmethode om de kraan naar de locatie van de klant te transporteren.
Acceptatie en levering
Klantacceptatie
Acceptatie ter plaatse: De klant voert de acceptatie van de kraan ter plaatse uit volgens de contractvereisten en technische specificaties om de prestaties en kwaliteit van de apparatuur te controleren.
Probleemoplossing: Als er problemen worden aangetroffen, moet de fabrikant deze tijdig verhelpen om ervoor te zorgen dat de apparatuur volledig aan de eisen van de klant voldoet. Levering en gebruik Bedieningstraining: De fabrikant traint doorgaans de machinisten van de klant om ervoor te zorgen dat zij de kraan correct en veilig kunnen bedienen.





Populaire tags: reizende portaalkraan, China reizende portaalkraanfabrikanten, leveranciers, fabriek
Een paar
15 Granty-kraanVolgende
Industriële portaalkraanMisschien vind je dit ook leuk
Aanvraag sturen

























