Grondrailgantiekraan
Productenbeschrijving
Soorten grondrailgersranen
Single-rairran
Lichtere plicht, kosteneffectief.
Geschikt voor workshops en kleine scheepswerven.
Dubbele railstam-portierkraan
Zware tillen met hogere haakhoogte.
Gebruikt in grote scheepswerven en industriële fabrieken.
Semi-engere kraan
De ene kant loopt op een rail, terwijl de andere op grondwielen beweegt.
Ideaal voor faciliteiten met ruimtebeperkingen.
Container Gantry Crane (RMG - Rail Mounted Gantry)
Gebruikt in poorten en intermodale werven voor het stapelen van containers.
Belangrijkste kenmerken van grondrailgersranen
Rail gemonteerde beweging
Runs op ingebedde of oppervlakte-gemonteerde stalen rails voor gladde reizen.
Zorgt voor een precieze positionering van zware belastingen.
Hoog laadvermogen
Kan aanVan enkele ton tot meer dan 1, 000 ton, afhankelijk van het ontwerp.
Geschikt voor scheepsbouw, brugconstructie en grote machinesafhandeling.
Aanpasbare overspanning en hoogte
Verstelbare portaalbreedte om verschillende werkgebieden te dekken.
Kan worden ontworpen voor gebruik binnen of buiten.
Stevige constructie
Gemaakt van hoogwaardig staal voor duurzaamheid.
Versterkte benen en kruisbalken voor stabiliteit.
Aangedreven beweging
Elektrische of hydraulische aandrijfsystemen voor soepele werking.
Kan worden bediend viahanger controle, cabine of afstandsbediening.
Veiligheidsfuncties
Anti-collisiesystemen, overbelastingsbeveiliging en buffers voor spoorweguiteinden.
Noodstopfuncties en windbestendige ontwerpen (voor buitengebruik).
Vergelijking met andere kraantypen
| Functie | Grondrailgantiekraan | Rubberen Gantry (RTG) | Overheadkraan | Mobiele kraan |
|---|---|---|---|---|
| Mobiliteit | Rail-geleide (vast pad) | Wiel gemonteerd (mobiel) | Vaste landingsbaan | Volledig mobiel |
| Maximale capaciteit | Maximaal 1, 000+ ton | Tot 100 ton | Tot 500 ton | Maximaal 3, 000+ ton |
| Nauwkeurigheid | Hoog (spoorgeleide) | Gematigd | Hoog | Laag (zwaai risico) |
| Installatiekosten | Hoog (vereist rails) | Medium | Hoog (baanstralen) | Laag (geen opstelling) |
| Het beste voor | Zware, repetitieve liften | Poorten, containerwerven | Workshops, fabrieken | Eenmalige liften |
Kerncomponenten: motor, lager, versnellingsbak, motor, versnelling
Plaats van herkomst: Henan, China
Garantie: 2 jaar
Gewicht (kg): 50000 kg
Video-uitgave-inspectie: verstrekt
Machinery Test Report: verstrekt
Toepassing: buiten
Sleutelwoorden: Gantry Crane
Nominale laadcapaciteit: 50ton
Kruisreissnelheid: 44,6 m\/min
Lange reissnelheid: 47,1 m\/min
Control Way: Cabin
Voeding: kabelhaspel
Steel Track: Qu80
Power: 3- fase AC 50Hz 380V

Foto's en componenten
Een portierkraan van de grondrail bestaat uit verschillende belangrijke structurele en mechanische componenten die samenwerken om veilige en efficiënte hefactiviteiten te garanderen. Hieronder is een gedetailleerde uitsplitsing van de belangrijkste delen:
1. Belangrijkste structurele componenten
A. Gantry Bridge (hoofdligger)
De horizontale straal die het werkgebied overspant.
Single-raar (lichtere belastingen) of dubbele string (zware duty).
Gemaakt van gelast staal (doostype of trussontwerp voor stijfheid).

B. benen (ondersteunende kolommen)
Verticale structuren die de brug ondersteunen.
Kan worden opgelost of verstelbaar (voor variabele hefhoogten).
Uitgerust met eindtrucks (wielassemblages) voor spoorwegbeweging.
C. Einde vrachtwagens (reismechanisme)
Wielassemblages gemonteerd aan de basis van de benen.
Neem spoorwielen, motoren, versnellingsbakken en remmen op.
Kan worden aangedreven (aangedreven) of IDLER (niet-aangedreven).
D. Rails & Track -systeem
Zware stalen rails geïnstalleerd op de grond.
Flat-top rails (gemeenschappelijk) of gegroefde rails (voor betere wielgreep).
Vereist een goede uitlijning en fundering (beton- of stalen slapers).
![]() |
![]() |
2. Mechanisme van tillen en hijsen
A. takelseenheid
Het primaire hefapparaat (elektrisch of hydraulisch).
Typen: Draadtouwhakel of kettingtakel.
Bevat een haak, trommel, motor en remsysteem.
B. Trolley (krabeenheid)
Beweegt langs de brugbalk om de belasting te positioneren.
Bevat de takel en zijn aandrijfsysteem.
Aangedreven door elektrische motoren met versnellingsbediende wielen.
C. Spreidstraal (optioneel)
Gebruikt voor een evenwichtige tillen van brede belastingen (bijv. Verzendsecties, containers).
Verdeelt het gewicht gelijkmatig om belasting te voorkomen.
![]() ![]() |
3. Station- en besturingssystemen
A. Travel drives
Elektrische motoren die de wielen van de eindtruck voeden.
Kan variabele frequentiedroven (VFD's) omvatten voor soepele versnelling.

B. Controlesysteem
Hanger controle (hangende afstandsbediening).
Radio -afstandsbediening (draadloze bediening).
Operatorcabine (voor grote kranen).
C. stroomvoorziening
Schuifkabelspoeren (voor elektrische kranen).
Festoon Systems (kabelbeheer langs de brug).
Dieselgeneratoren (voor externe locaties).

4. Veiligheidscomponenten
A. Beperk schakelaars
Voorkom overreizen van de trolley of hijs.
Eind-of-rail-beperkers stoppen de kraan aan baanlimieten.
B. Beveiliging van overbelasting
Laadcellen of sensoren om een buitengewoon capaciteit te voorkomen.

C. Anti-collisiesystemen
Laser- of ultrasone sensoren voor multi-crane omgevingen.
D. Railklemmen en remmen
Vergrendel de kraan op zijn plaats tijdens harde wind of onderhoud.
E. noodstop (e-stop)
Geïnstalleerd op bedieningspanelen voor onmiddellijke afsluiting.
.
5. Extra accessoires (optioneel)
Kraanverlichting en alarmen-voor zichtbaarheid in omstandigheden met weinig licht.
Windsnelheidsensoren-Auto-shutdown in harde wind (buitenkranen).
Weegsysteem - geïntegreerde belastingmeting.
Ladder en onderhoudsplatform - voor onderhoud.

Onderhoudscontrolelijst voor belangrijke componenten
| Onderdeel | Onderhoudstaak |
|---|---|
| Rails & Wheels | Schoon puin, controleer uitlijning, smeer. |
| Draadtouw\/takel | Inspecteer op slijtage, breng vet aan. |
| Elektrisch systeem | Controleer kabels, verbindingen en sensoren. |
| Remmen | Test noodremfunctie. |
| Structurele lassen | Zoek naar scheuren of corrosie. |

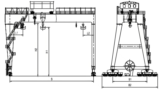
SCHETSEN

Hoofdtechnisch

Voordelen
1. Hoog laadvermogen en stabiliteit
Kan tillenvan 10 ton tot meer dan 1, 000 ton, afhankelijk van het ontwerp.
Stalen rails bieden een superieure stabiliteitVergeleken met met rubber aangedane of mobiele kranen.
Ideaal voorZware, oversized ladingen(scheepssecties, industriële machines, brugcomponenten).
2. Nauwkeurige en soepele beweging
Rails zorgen voorNauwkeurige positioneringvoor montage- en installatietaken.
Verminderde zwaaienVergeleken met overheadkranen met lange spanningen.
3. Lange span en aanpasbaar ontwerp
Kan spannentot 50 meter of meer, over grote werkgebieden.
Verstelbaarhoogte, breedte en hefmechanismenvoor verschillende toepassingen.
4. Duurzaamheid en lange dienstleven
Zware stalen constructie is bestand tegen harde omgevingen (poorten, scheepswerven).
OnderhoudsarmeVergeleken met mobiele kranen met complexe hydraulica.
5. Veiligheid en betrouwbaarheid
Anti-collisiesystemenvoor bewerkingen met meerdere crane.
Bescherming van overbelasting en noodremmenOngevallen voorkomen.
Vaste rails verminderen het risico op kantelen(In tegenstelling tot mobiele kranen).
6. kosteneffectief voor repetitieve taken
Efficiënter danmobiele kranenvoor frequente liften met hoge capaciteit.
LagerOperationele kosten op lange termijnVergeleken met het huren van mobiele kranen.
Sollicitatie
Toepassingen van grondrailgersranen
Deze kranen worden veel gebruikt in de vereiste industrieënzwaar tillen, precisiehandling en grote werkgebieden.
1. Scheepbouw en reparatie
TillenVerzendrompen, motoren en grote secties.
PositioneringPropellers, roeren en andere zware mariene componenten.
2. Poorten en containeraansluitingen
Afhandelingverzendcontainers(Rail-gemonteerd portaal, RMG).
Laden\/lossenBulk vracht, zware machines en projectvracht.
3. Zware machines en productie
InstallatieIndustriële ketels, turbines en generatoren.
BewegendDruk op machines, mallen en grote fabrieksapparatuur.
4. Bridge- en bouwprojecten
Samenstellengeprefabriceerde betonnen segmenten.
Tillenstalen liggers en brugcomponenten.
5. Sector Power Plants & Energy
AfhandelingWindturbinebladen, kernreactoronderdelen en transformatoren.
Onderhoud vanhydro -elektrische damapparatuur.
6. Aerospace en verdediging
BewegendZindelijke rots, raketsecties en militaire voertuigen.
Kraanproductie procedure
1. Ontwerp en engineering
Aangepast ontwerp:
Het kraanontwerp wordt gemaakt op basis van de specifieke vereisten van de klant, inclusief het hefcapaciteit (50 ton), spanwijdte, tillenhoogte en omgeving (bijv. Outdoor, binnen, harde omgevingen).
Gedetailleerde 3D -modellering en structurele analyse worden uitgevoerd met behulp van ontwerpsoftware om prestaties en veiligheid te optimaliseren.
Engineeringspecificaties:
Berekening van belastingdragende capaciteit, structurele stabiliteit, stroomvereisten en materiaalspecificaties.
Zorgen voor naleving van internationale ISO-, DIN- en ANSI -normen.
2. Materiaalselectie
Hoogwaardig staal:
Stalen platen, balken en structurele componenten worden geselecteerd voor hun sterkte, duurzaamheid en corrosieweerstand.
Voor kritieke onderdelen zoals de hoofdbalk en het einde van de eindwagen, wordt een sterk sterkte staal gekozen om de zware belastingen en hoge spanningen te hanteren.
Component Sourcing:
Elektrische motoren, versnellingsbakken, draadtouwen, wielen en andere mechanische onderdelen zijn afkomstig van vertrouwde leveranciers die voldoen aan de vereisten van de kraan voor betrouwbaarheid en een lange levensduur.
3. Fabricage en montage
a) Hoofdbamersproductie
Snijden en lassen:
Stalen platen en secties worden op maat gesneden en de hoofdliggercomponenten worden aan elkaar gelast in strikte uitlijning om de dimensionale nauwkeurigheid en belastingverdeling te behouden.
Inspectie:
Elke component wordt grondig geïnspecteerd op het lassen van integriteit, uitlijning en materiaalsterkte.
b) Eindvoer en ondersteunende structuren
Fabricage:
De eindbeelden worden gefabriceerd met behulp van vergelijkbare technieken, zodat ze in staat zijn om het volledige gewicht van de kraan en de belasting te ondersteunen.
Wielmontage:
Wielen worden geïnstalleerd op de eindbeelden, met precieze uitlijning om een gladde kraanreizen langs de rails te garanderen.
c) Montage van het hefmechanisme
Hijssysteem:
De elektrische hijs wordt geassembleerd, waaronder de motor, versnellingsbak, trommel en draadtouw.
De trolley en takel zijn gemonteerd op de hoofdbalk, met alle componenten getest op een goede uitlijning en een soepele werking.
4. Elektrische en besturingssystemen
Bedrading en bedieningspaneel:
Elektrische componenten zoals motoren, limietschakelaars, bedieningspanelen en veiligheidsalarmen zijn bedraad en verbonden.
Installatie van variabele frequentieaandrijving (VFD) voor soepele snelheidsregeling en afstandsbedieningssystemen voor bediening.
Besturingssysteem Testen:
Het bedieningspaneel wordt getest om de responsieve werking te garanderen, inclusief alle knoppen, schakelaars en veiligheidsfuncties.
5. Testen en kwaliteitscontrole
Statische testen:
De kraanstructuur ondergaat statische belastingstests om ervoor te zorgen dat deze veilig zijn nominale hefcapaciteit van 50 ton kan ondersteunen.
Dynamische testen:
Dynamische laadtests worden uitgevoerd om de operationele mogelijkheden van de kraan te verifiëren onder reële werkomstandigheden, waaronder het tillen en verplaatsen van een volledige belasting.
Veiligheid en functionaliteitstesten:
Elk veiligheidsapparaat (overbelastingsbeveiliging, limietschakelaars, anti-weg systemen) wordt getest op de juiste functionaliteit.
Het bewegingssysteem van de kraan (tillen, reizen en trolley) wordt grondig getest op soepele werking, nauwkeurigheid en stabiliteit.
6. Laatste inspectie en schilderen
Visuele inspectie:
Een laatste visuele inspectie wordt uitgevoerd om kwaliteit, pasvorm en afwerking te garanderen. Alle aanpassingen worden aangebracht aan de montage indien nodig.
Schilderen en anti-corrosie-behandeling:
De kraan is bedekt met een corrosiebestendige verf (meestal een primer, basislaag en toplaag) om de structuur te beschermen tegen slijtage en harde omgevingscondities.
7. Verpakking en levering
Demontage voor verzending:
De kraan wordt vaak gedeeltelijk gedemonteerd (bijv. Hijs, trolley) voor een gemakkelijkere verzending.
Inpakken en transport:
Componenten worden zorgvuldig verpakt om schade tijdens het transport te voorkomen.
De kraan wordt geleverd op de site van de klant, samen met alle benodigde documentatie (handleidingen, certificaten en veiligheidsgegevens).
8. Installatie en inbedrijfstelling
Ter plaatse assemblage:
Eenmaal geleverd, wordt de kraan opnieuw samengesteld op de installatieplaats, waardoor de juiste afstemming met rails en structurele componenten wordt gewaarborgd.
Laatste testen en kalibratie:
Na de assemblage wordt het definitieve testen uitgevoerd om ervoor te zorgen dat de kraan werkt zoals verwacht onder de gespecificeerde omstandigheden.
Operator training:
De exploitanten van de klant zijn getraind op kraanbewerking, onderhoud en veiligheidsprocedures.

Workshop -weergave:
Het bedrijf heeft een intelligent apparatuurbeheerplatform geïnstalleerd en heeft 310 sets (sets) hanterings- en lasrobots geïnstalleerd. Na de voltooiing van het plan zullen er meer dan 500 sets (sets) zijn en zal het apparatuurnetwerkpercentage 95%bereiken. Er zijn 32 laslijnen in gebruik genomen, er zijn 50 gepland om te worden geïnstalleerd en het automatiseringspercentage van de gehele productlijn heeft 85%bereikt.





Populaire tags: Ground Rail Gantry Crane, China Ground Rail Gantry Crane Manufacturers, Leveranciers, Factory
Misschien vind je dit ook leuk
Aanvraag sturen



























